L'azienda
Dove siamo
I nostri lavori
Vendita Appartamenti
News
Link
Contatti
Loading...
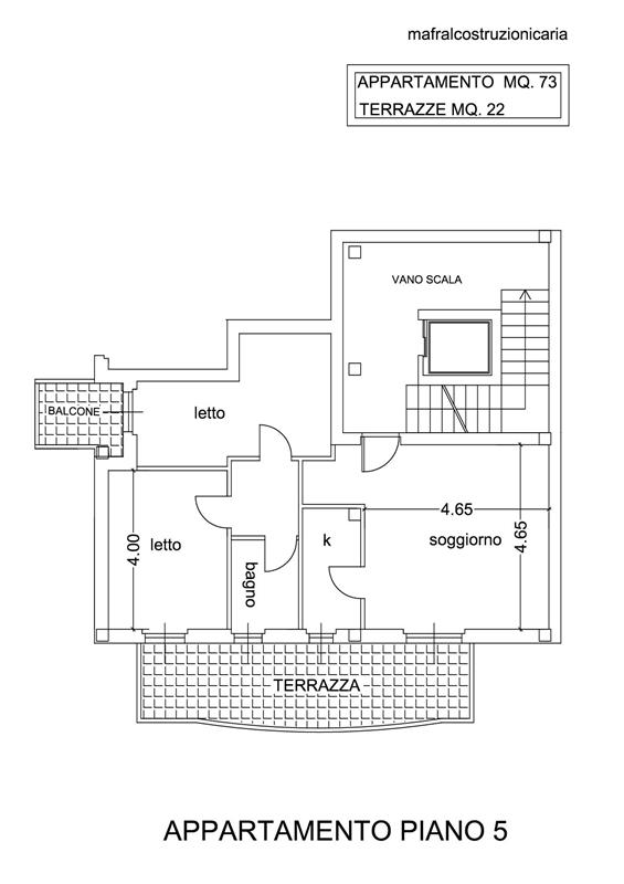
TRILOCALE MQ 84 COMMERCIALI
soggiorno pranzo
cucina
camera matrimoniale
camera
bagno
ampia verande abitabile