L'azienda
Dove siamo
I nostri lavori
Vendita Appartamenti
News
Link
Contatti
Loading...
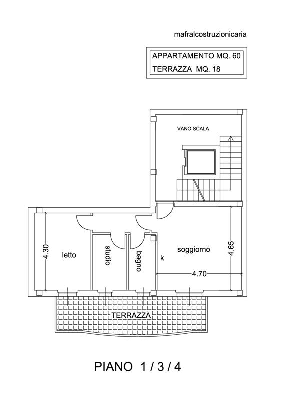
TRILOCALE MQ 69 COMMERCIALI
Appartamento composto da
soggiorno-pranzo
camera matrimoniale
camera - studio
bagno
ampia veranda abitabile